
Фильтр ФГГ-500
цена от
960 200 руб.
- Исполнение – горизонтальное
- Номинальный диаметр DN – 500 мм
- Номинальное давление PN – до 10,0 МПа
- Тонкость фильтрации – 4, 8, 12, 16 или 25 мм
- Максимальная производительность – 1200 м³/ч
- Материал корпуса – 09Г2С / 12Х18Н10Т / другая сталь
- Блочное исполнение – опционально
- Теплоизоляция – опционально
- Комплектация КИП, ЗРА – опционально
- Резервные фильтрующие элементы – опционально
Фильтр грязеуловитель ФГГ-500 (DN 500, 1200 м³/ч) предназначен для магистральных нефтепроводов и крупных НПС. Модель справляется с высокими нагрузками, обеспечивая очистку нефти от песка, окалины и парафиновых отложений.
Примеры применения
- Магистраль «Транснефть»: Установка на участках с повышенным содержанием механических примесей.
- Портовые терминалы: Фильтрация сырой нефти перед погрузкой в танкеры.
- Нефтехранилища: Защита резервуаров от засорения.
Особенности фильтров для НПС ФГГ-500
- Двойные перепускные клапаны: Обеспечивают бесперебойную работу при засоре.
- Теплоизоляция: Опциональная обшивка для эксплуатации в условиях Крайнего Севера.
- Долговечность: Ресурс корпуса — 25 лет благодаря многослойной антикоррозийной обработке.
Технические параметры фильтра для нефти ФГГ-500
| Обозначение | Фильтр ФГГ-500 |
| Производительность, м³/ч | 1200 |
| Условное давление, Pу, МПа | 1,6; 2,5; 4,0; 6,3; 8,0 или 10,0 |
| Температура нефти, ℃ | От -15 до +80 |
| Температура нефтепродуктов, ℃ | От -20 до +80 |
| Степень фильтрации, мм | 4, 8, 12, 16 или 25 |
| DN, мм | 500 |
| Dp, мм (внутренний диаметр корпуса) | 1000 |
| L, мм (расстояние от фланца корпуса до кромки осевого патрубка) | 4400 |
| L1, мм (расстояние от оси бокового патрубка) | 1900 |
| H, мм (расстояние от оси ФГГ до опоры) | 1100 |
| L2, мм (расстояние между опорами) | 2300 |
| L3, мм (расстояние до опоры) | 1200 |
| Обозначение | Блочный фильтр ФГГ-500 |
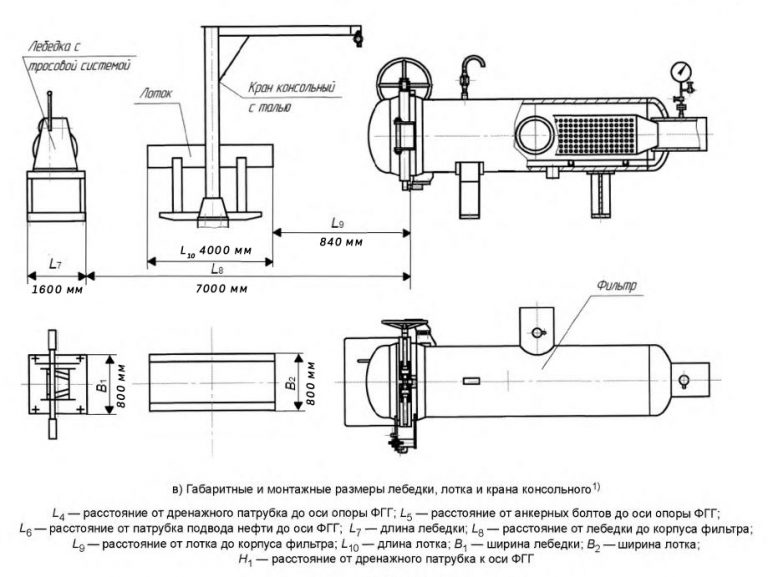
| L7, мм (длина лебедки) | 1600 |
| L8, мм (расстояние от лебедки до корпуса фильтра) | 7000 |
| L9, мм (расстояние от лотка до корпуса фильтра) | 840 |
| L10, мм (длина лотка) | 4000 |
| В2, мм (ширина лотка) | 800 |
| В1, мм (ширина лебедки) | 800 |
| L5, мм (расстояние от анкерных болтов до оси опоры ФГГ) | 70 |
| L6, мм (расстояние от патрубка подвода нефти до оси ФГГ) | 950 |
| L4, мм (расстояние от дренажного патрубка к оси опоры) | 1300 |
| Н1, мм (расстояние от дренажного патрубка до оси ФГГ) | 700 |
| Радиус вылета быстроразъемного концевого затвора, мм | 1360 |
| Количество штурвалов быстроразъемного концевого затвора, шт | 2 |
Чертеж фильтра ФГГ-500
Чертеж блочного фильтра ФГГ-500
Расшифровка условного обозначения
Например, фильтр грязеуловитель горизонтальный ФГГ номинальным диаметром DN 500 на номинальное давление PN 10,0 МПа, блочного исполнения, с осевым отводом нефти или нефтепродуктов, с правым расположением патрубка подвода нефти или нефтепродуктов, в сейсмостойком исполнении С по MSK — 64 [10], без теплоизоляции, вид климатического исполнения УХЛ1 по ГОСТ 15150 будет обозначаться следующим образом: ФГГ-500-10,0-Б-0-П-С-УХЛ1.
Преимущества ООО "УЗСК"
- Собственное производство и конструкторский отдел.
- Помощь в шеф-монтаже и пусконаладке.
- Скидки на оптовые заказы.
Заполните форму заказа






